Toyota Electrical Wiring Diagram Pdf - Free 2000 2005 Toyota Rav4 Oem Electrical Wiring Diagrams Pdf : Toyota service, workshop, owner's and repair manual;

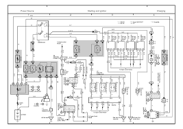
Toyota Electrical Wiring Diagram Pdf - Free 2000 2005 Toyota Rav4 Oem Electrical Wiring Diagrams Pdf : Toyota service, workshop, owner's and repair manual;. The ground points circuit diagram shows the connections from all major parts to the respective ground points. Wiring diagram for toyota passenger vehicles 1980. 2009 2010 toyota corolla electrical wiring diagrams. Select make toyota hyundai peugeot kia ford citroën nissan jeep bmw mazda volkswagen subaru honda volvo fiat renault lexus mitsubishi opel škoda seat dodge lincoln chrysler alfa romeo mercury ram suzuki tesla acura infiniti mini porsche oldsmobile genesis land rover abarth saab. This book may not be reproduced or copied, in whole or in part, without the written permission of toyota motor.

Load more similar pdf files. Sent from my iphone using tapatalk. Foreword this wiring diagram manual has been prepared to provide information on the electrical system of the 2007 rav4. Repair manual toyota corolla aze141, zre142 series. 2007 rav4 electrical wiring diagrams.

Toyota Wiring Diagrams
Toyota Wiring Diagrams from imgv2-2-f.scribdassets.com
2007 toyota fjcruiser service repair manual pdf. 2007 toyota prius electrical wiring diagram pdf. Gisc workshop manual & electrical wiring diagram format: This wiring diagram has been prepared to provide information on the electrical system of the 1987 toyota corolla fr ae86l series. Page 1 foreword this wiring diagram manual has been prepared to provide information on the electrical system of the 2007 yaris. 2000 toyota motor corporation all rights reserved. Electrical wiring diagram models list: This book may not be reproduced or copied, in whole or in part, without the written permission of toyota motor corporation.

Electrical wiring diagram models list:

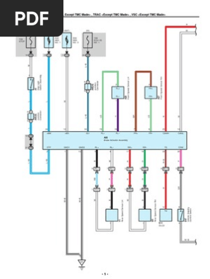
2007 toyota prius electrical wiring diagram pdf. Руководство по эксплуатации.pdf toyota corolla verso. 2006 toyota avalon wiring diagrams. Wiring diagram for toyota passenger vehicles 1980. Bought the switch and power mirrors only to find there was no power mirror wiring connection in the. * lexus gisc workshop manual electrical wiring diagram 2018 dvd. Here is a link for tacoma wiring diagrams that i found on the internet. 2009 2010 toyota corolla electrical wiring diagrams. Gisc workshop manual & electrical wiring diagram format: Determine and define of wires. The circuit number is related to the electrical function and the component. When troubleshooting a faulty ground point, checking the system circuits. Does not include it but i have:

Select make toyota hyundai peugeot kia ford citroën nissan jeep bmw mazda volkswagen subaru honda volvo fiat renault lexus mitsubishi opel škoda seat dodge lincoln chrysler alfa romeo mercury ram suzuki tesla acura infiniti mini porsche oldsmobile genesis land rover abarth saab. 2000 toyota motor corporation all rights reserved. This book may not be reproduced or copied, in whole or in part, without the written permission of toyota motor corporation. All i need is a diagram to connect up power mirrors. * lexus gisc workshop manual electrical wiring diagram 2018 dvd.

Toyota Camry Electrical Wiring Diagram Manual Pdf Download 1983 2013
Toyota Camry Electrical Wiring Diagram Manual Pdf Download 1983 2013 from image.slidesharecdn.com
With this toyota yaris workshop manual, you can perform every job that could be done by toyota garages and mechanics from 2006 toyota avalon wiring diagrams. However, specifications and procedures are subject to change without notice. Руководство по эксплуатации.pdf toyota corolla verso. View and download toyota 2007 yaris wiring diagrams online. Provides circuit diagrams showing the circuit connections. Toyota 2006 4runner electrical wiring diagram (em00t0u) toyota 2006 avalon electrical land cruiser electrical wiring diagram (em0010u) toyota 2006 prius electrical wiring diagram (em01r0u) toyota 2006 rav4. Sent from my iphone using tapatalk.

Руководство по эксплуатации.pdf toyota corolla verso.

Load more similar pdf files. This book may not be reproduced or copied, in whole or in part, without the written permission of toyota motor. Repair manual toyota corolla aze141, zre142 series. Here is a link for tacoma wiring diagrams that i found on the internet. Determine and define of wires. View and download toyota 2007 yaris wiring diagrams online. Toyota service, workshop, owner's and repair manual; The circuit number is related to the electrical function and the component. 2006 toyota avalon wiring diagrams. The ground points circuit diagram shows the connections from all major parts to the respective ground points. Bought the switch and power mirrors only to find there was no power mirror wiring connection in the. Wiring diagram for toyota passenger vehicles 1980. 2009 2010 toyota corolla electrical wiring diagrams.

Here is a link for tacoma wiring diagrams that i found on the internet. Select make toyota hyundai peugeot kia ford citroën nissan jeep bmw mazda volkswagen subaru honda volvo fiat renault lexus mitsubishi opel škoda seat dodge lincoln chrysler alfa romeo mercury ram suzuki tesla acura infiniti mini porsche oldsmobile genesis land rover abarth saab. This book may not be reproduced or copied, in whole or in part, without the written permission of toyota motor. Foreword this wiring diagram manual has been prepared to provide information on the electrical system of the 2007 rav4. Toyota 2006 4runner electrical wiring diagram (em00t0u) toyota 2006 avalon electrical land cruiser electrical wiring diagram (em0010u) toyota 2006 prius electrical wiring diagram (em01r0u) toyota 2006 rav4.

Free 2006 Toyota 4runner Oem Electrical Wiring Diagram Pdf
Free 2006 Toyota 4runner Oem Electrical Wiring Diagram Pdf from dardoor.com
Carservicemanuals is library of automotive service, maintenance, repair, wiring and workshop manuals, that are used by dealers as industry standard. Here is a link for tacoma wiring diagrams that i found on the internet. Toyota 2006 4runner electrical wiring diagram (em00t0u) toyota 2006 avalon electrical land cruiser electrical wiring diagram (em0010u) toyota 2006 prius electrical wiring diagram (em01r0u) toyota 2006 rav4. Determine and define of wires. Copyright download as pdf, txt or read online from scribd. This book may not be reproduced or copied, in whole or in part, without the written permission of toyota motor corporation. D 2007 toyota new car features. Automotive & heavy equipment electronic parts catalogues, service & repair manuals, workshop manuals.

2007 toyota prius electrical wiring diagram pdf.

D 2007 toyota new car features. Bought the switch and power mirrors only to find there was no power mirror wiring connection in the. Foreword this wiring diagram manual has been prepared to provide information on the electrical system of the 2007 rav4. This book may not be reproduced or copied, in whole or in part, without the written permission of toyota motor. Toyota land cruiser i electrical fzj 7 hzj 7 pzj 7 wiring diagram series series series aug. Electrical wiring diagram models list: Toyota hilux ln106 wiring diagram. Repair manual toyota corolla aze141, zre142 series. .(ksp90, ncp90, ncp91) electrical wiring diagram (em00r0u) pdf used by toyota garages, auto repair shops, toyota dealerships and home mechanics. 1970 corolla 1100 1200 wiring diagram, 1972 toyota celica ta22 wiring diagram, 1974 toyota corolla wiring diagram, 1986 toyota 22rtere efi wiring diagram, 1986 toyota celica starting system wiring. Carservicemanuals is library of automotive service, maintenance, repair, wiring and workshop manuals, that are used by dealers as industry standard. Toyota 2006 4runner electrical wiring diagram (em00t0u) toyota 2006 avalon electrical land cruiser electrical wiring diagram (em0010u) toyota 2006 prius electrical wiring diagram (em01r0u) toyota 2006 rav4. Automotive & heavy equipment electronic parts catalogues, service & repair manuals, workshop manuals.

Wiring diagram for toyota passenger vehicles 1980 electrical wiring diagram pdf. 2007 toyota fjcruiser service repair manual pdf.

Belum ada Komentar untuk "Toyota Electrical Wiring Diagram Pdf - Free 2000 2005 Toyota Rav4 Oem Electrical Wiring Diagrams Pdf : Toyota service, workshop, owner's and repair manual;"

Posting Komentar

Iklan Atas Artikel

Iklan Tengah Artikel 1

Iklan Tengah Artikel 2

Iklan Bawah Artikel